
PLANTA DE GENERACIÓN DE HIDRÓGENO PARA LA CARACTERIZACIÓN DE BATERÍAS DE HIDRÓGENO EN LA UNIVERSIDAD POLITÉCNICA DE CATALUÑA
ARPA diseña y construye una instalación de hidrógeno electrolítico ultra puro para suministrar un banco de pruebas de caracterización de pilas de combustible de hidrógeno en la Universidad Politécnica de Cataluña. Es necesario continuar la investigación y caracterización de las pilas de combustible de hidrógeno para mejorar su rendimiento y vida útil, y para ello la Universidad contrata a ARPA para dicha planta en su laboratorio.
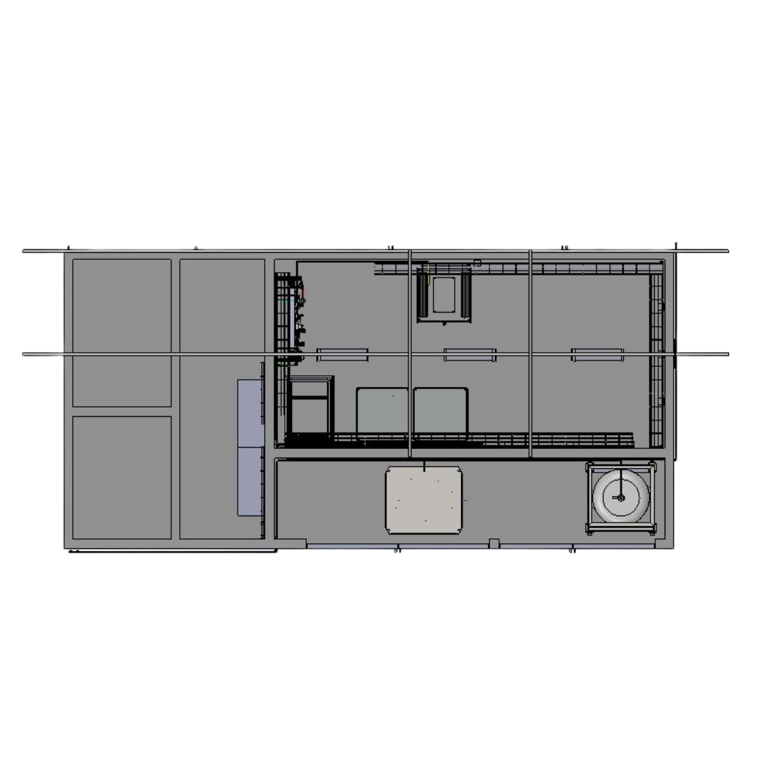
Esta planta de hidrógeno se alimenta de una instalación fotovoltaica y consiste en un sistema electrolítico que incluye un sistema de electrolizadores de membrana aniónica de alto rendimiento, instalados en una disposición de multistack, de tal manera que, a medida que aumenta el nivel de excedente fotovoltaico, cada uno de los módulos se activa.
La planta de energía de hidrógeno está equipada con un sistema de almacenamiento de hidrógeno.
Además, la planta también cuenta con un sistema de compresión de pistón compacto y modular que puede alcanzar hasta 350 bar, así como un reservorio de hidrógeno, junto con un reservorio de hidrógeno de baja presión y otro de alta presión de tipo IV y III, respectivamente.

Asimismo, la planta está equipada con un sistema para la utilización del hidrógeno excedente, que se consume en pilas de combustible de hidrógeno que reutilizan el combustible de hidrógeno.
Las pilas de combustible reelectrificarán el laboratorio según el balance de la planta.
AÑO DE EJECUCIÓN: 2023
Ubicación: Universidad Politécnica de Cataluña, Barcelona.
ARPA EMC: ingeniería básica y detallada, integración y balance de planta (BOP).
FASE I
- 6x Electrolizadores con una capacidad total de 6.2 kgH2/día a 35.
- Tecnología de electrólisis: AEM, membrana aniónica.
- Potencia de electrólisis: 18 kW.
- Pureza del hidrógeno generado: 99.999%.
- Almacenamiento de H2 en buffer bajo: 850 L tipo IV.
- Flujo de compresión: 3 Nm³/h.
- Tecnología de compresión: pistón de bajo consumo.
- Presión máxima de compresión: 300 bar.
- Almacenamiento de H2 en buffer alto: 16 kgH2 tipo III.
- 2x pilas de combustible con una capacidad total de 4.8 kW.
- Tecnología de pilas de combustible: PEM, membrana de protones.
Fase II:
- 40 electrolizadores.


